The Fresh Food Market is a sustainable, community-driven project designed in collaboration with my semester partner. It caters to students, daily commuters, senior citizens, and even pets, creating an inclusive space that blends food, learning, and community life.
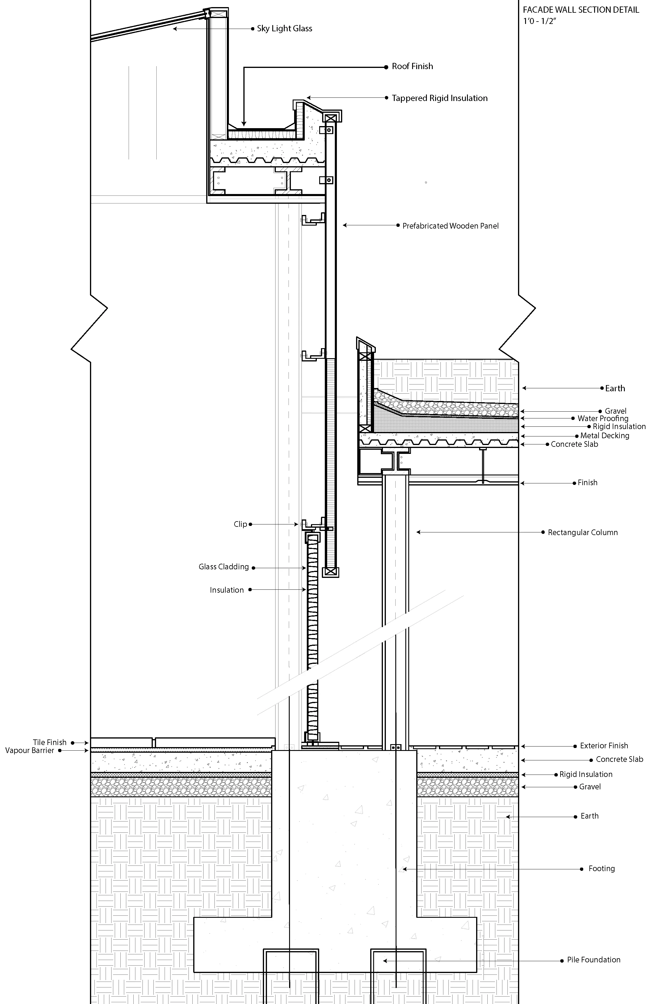
Details
The project is organized around a metal circulation spine that guides movement, shaded by PV panels that generate renewable energy. A semi-open market hall with channel glass walls and wood panel roofing hosts vendors and fresh produce, while a rooftop garden serves as both a learning zone for students and a community garden. The program includes flexible classrooms and offices for workshops and administration, a multipurpose event space connected to a shared kitchen and dining area for cultural and food-based programming, and pet-friendly zones with outdoor pockets and designated paths to ensure inclusivity.